
Prix de 779 000.00 $ taxe en sus
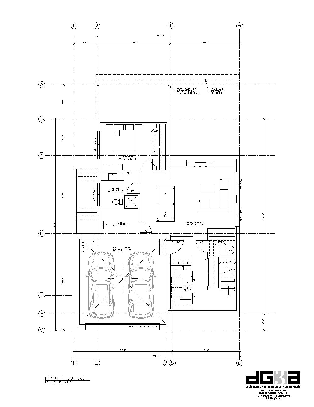
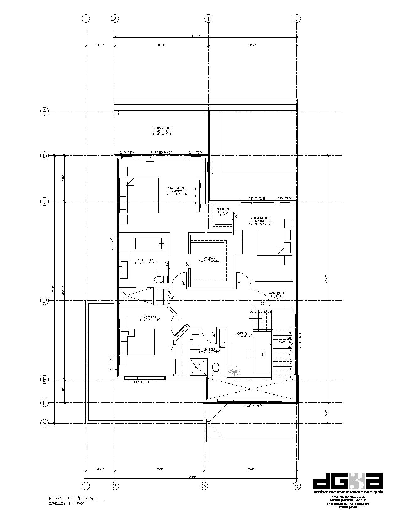
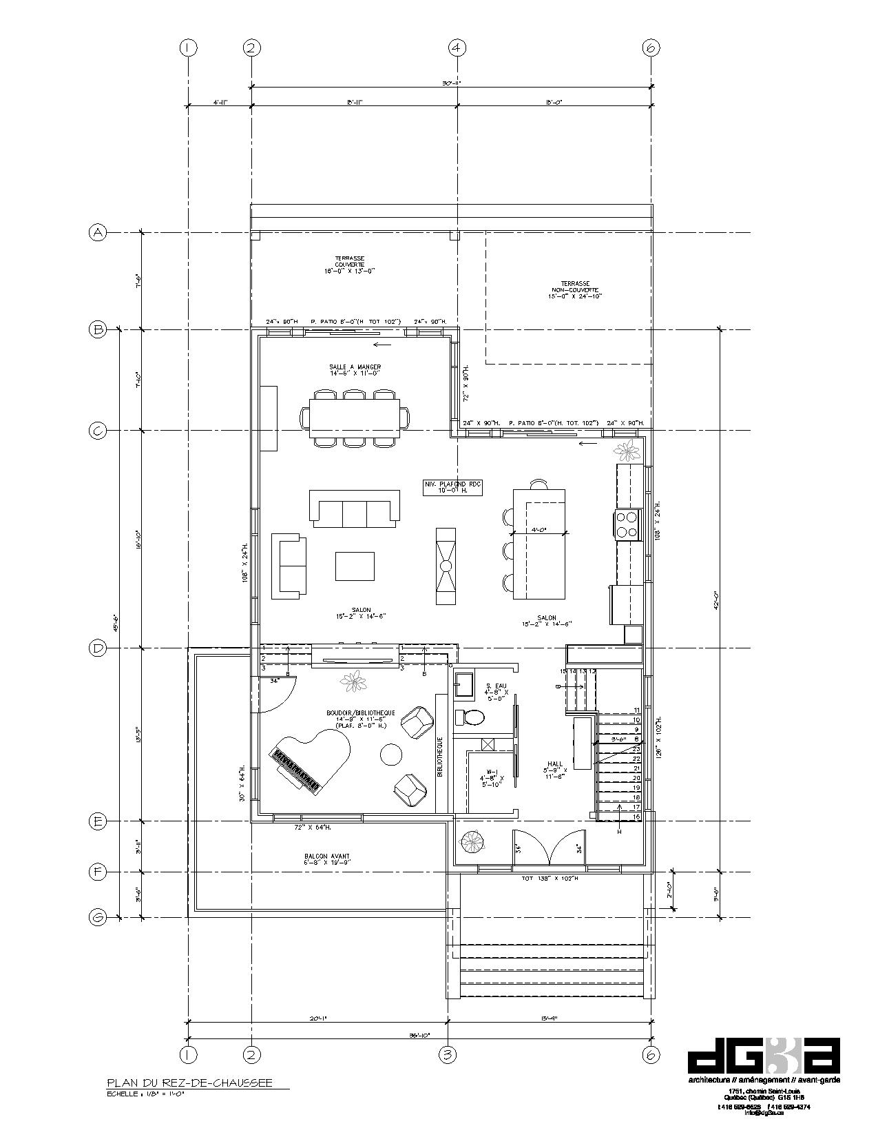
Spacieux et magnifique cottage unifamilial avec garage double intégré. 3 chambres dont 1 chambre des maîtres avec salle de bain privée et grand walk in, grande aire ouverte au rez de chaussée, boudoir, grande terrasse à l’arrière, etc..
Près de la rue Maguire, dans une des plus beaux secteurs au coeur de Sillery, près de tous les services, à deux pas des commerces de la rue Maguire et de tous les services : école, université, hôpitaux, etc.
Photos
Carte
Caractéristiques et inclusions
Prix de 779 000.00 $ taxe en sus
- Revêtements extérieurs briques, bois (garanti 50 ans et 15 ans sur teinture), acier émaillé et acrylique
- Toit plat
- Fenêtres type hybride ( PVC intérieur/ALU extérieur)
- Aménagement extérieur ( nivelé )
- Balcon en bois traité non couvert
- Porte de garage motorisée
- Garage double intégré
- Grande aire ouverte au rez-de-chaussée
- Salon et boudoir
- Hauteur plafond rez-de-chaussée 10 pieds et hauteur plafond sous-sol 8 pieds
- 3 chambres avec possibilités d’une 4ème au sous-sol
- Chambre des maîtres avec walk in, salle de bain privée complète
- 2ème salle de bain à l’étage avec douche et vanité
- Armoires cuisine et salle de bain de chez Cuisine Simard et Salle de bain
- Douche en verre et céramique
- Planchers bois franc au rez-de-chaussée et 1er étage
- Céramique dans salle de bain, salle d’eau, cuisine et entrée
- Walk in à l’entrée
- Échangeur d’air / récupérateur de chaleur à 80 %
- Plinthes électriques
- Escalier de bois franc en merisier
- Choix de 4 couleurs pour la peinture des murs intérieurs
- Service de Designer possible
- Qualité de construction supérieure
- Garantie GCR de 5 ans
Options :
- Sous-sol fini
- Terrasse couverte
- Entrée garage asphaltée
- Plancher radiant au sous-sol et garage
- Air climatisé
- Chauffage central
- Foyer au gaz
- Balayeuse centrale
- Ssytème d’alarme
- Balcon avant et arrière
- Aménagement extérieur gazonné
- Trottoir en inter-bloc entre le stationnement et la porte principale
* Les photos sont à titre indicatif et peuvent différer du devis.
Implantation
Plans


