
Prix : 439 000,00 $ taxes en sus
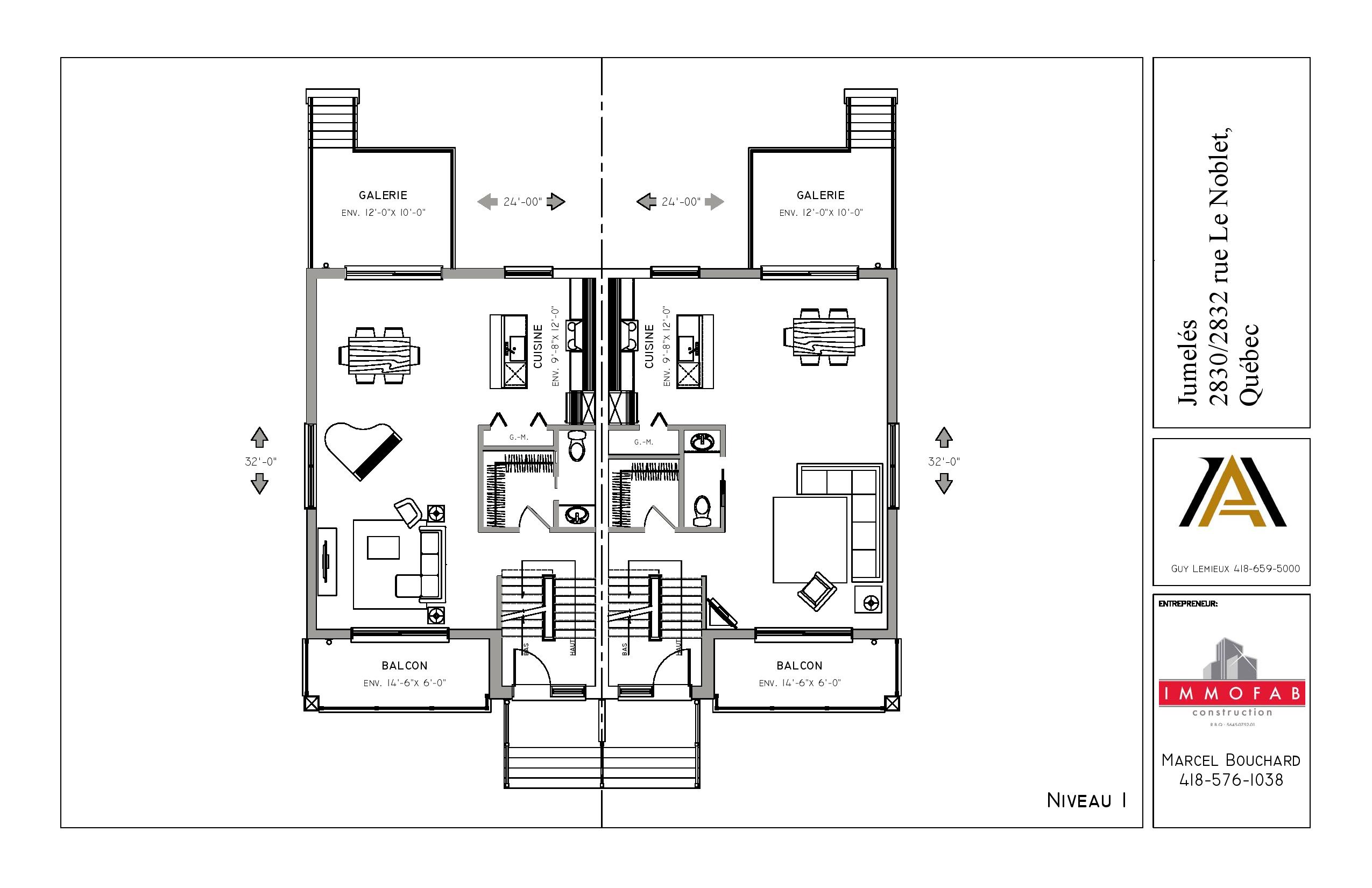
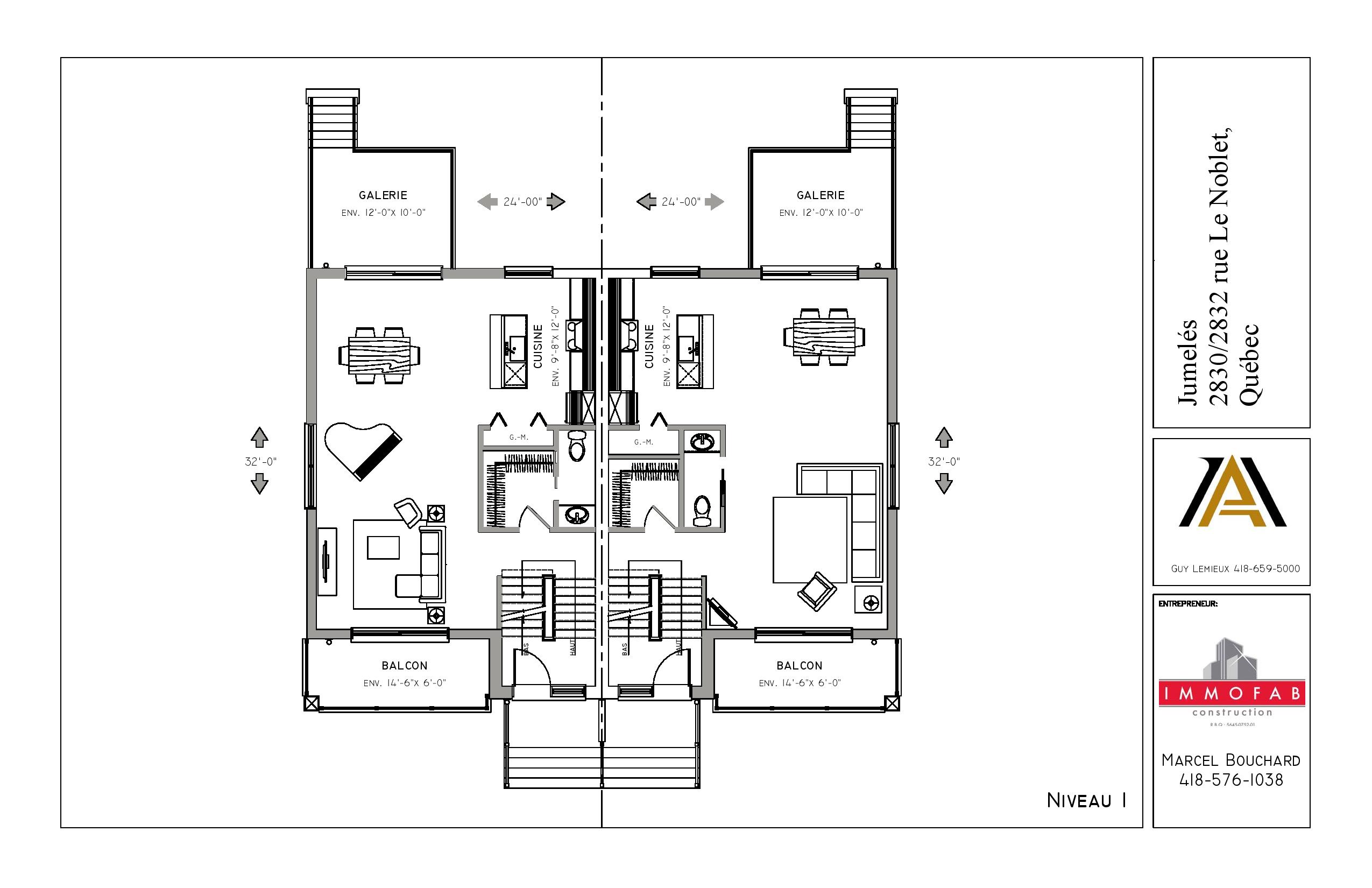
Ce jumelé de 24’x 32′ se situe à proximité du boulevard Laurier, de l’Univertsité Laval, du Centre Hospitalier etc..
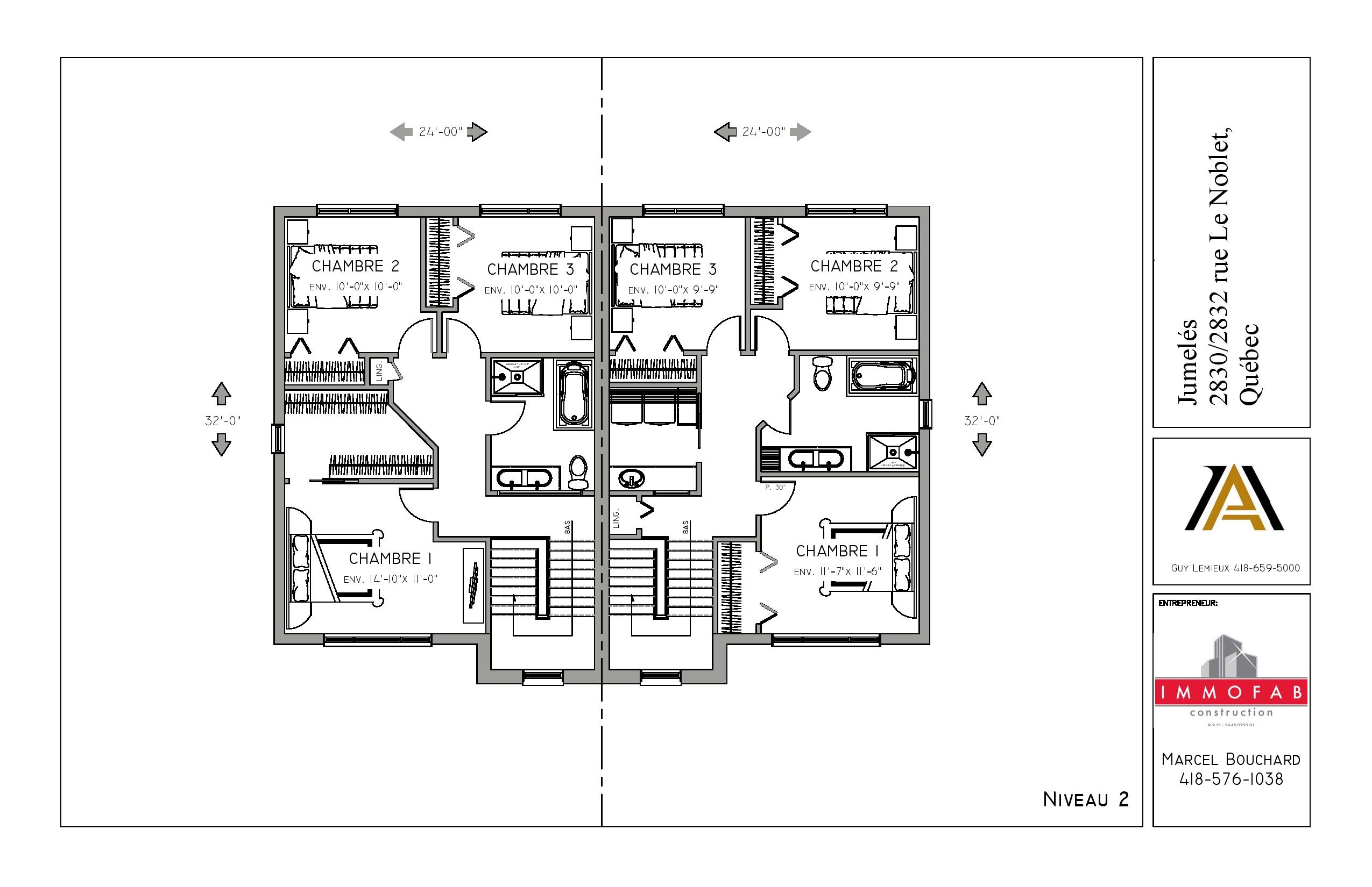
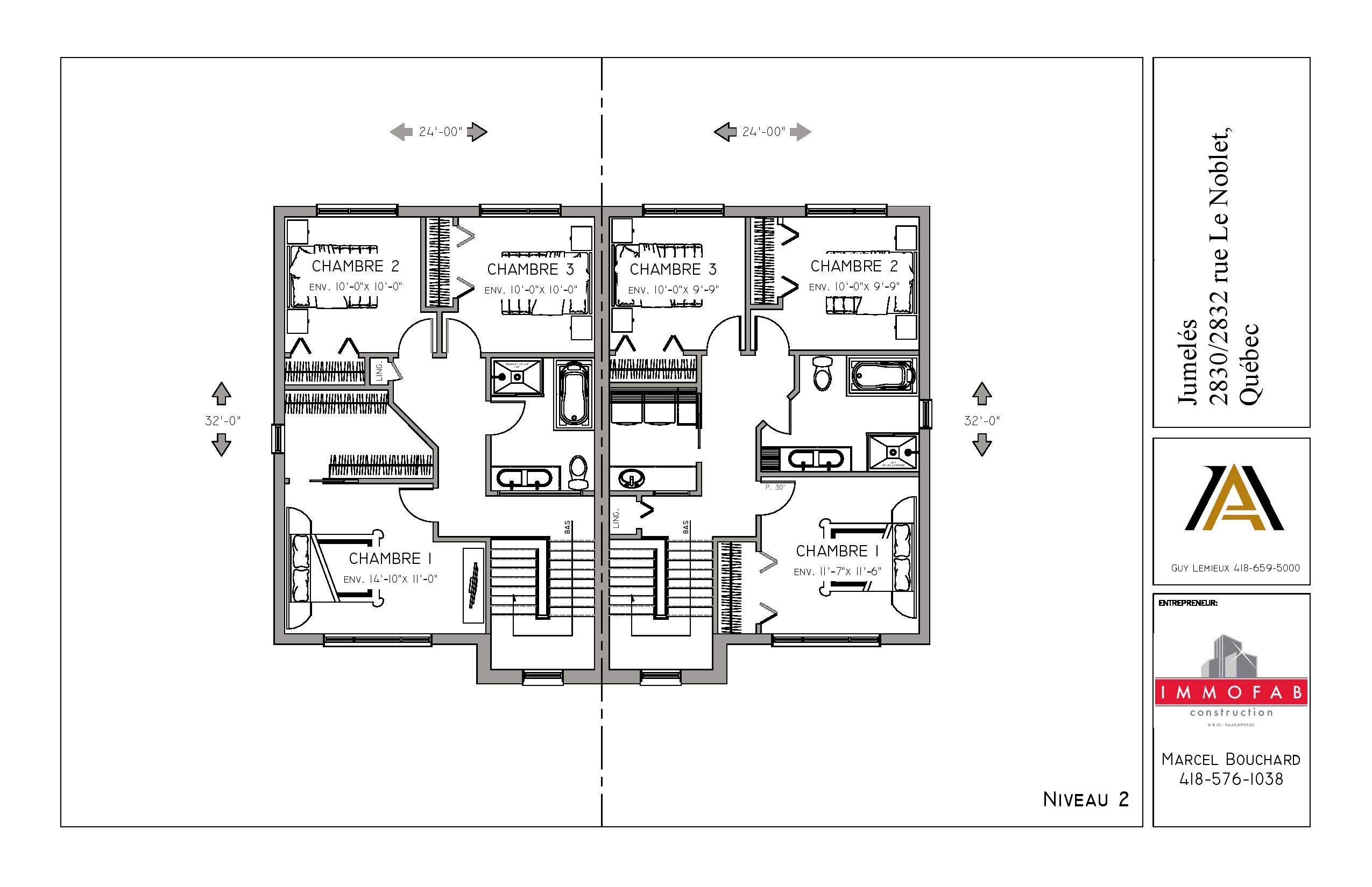
Il se compose de 3 chambres dont une avec un grand walk in, une salle de bain avec bain podium et une douche indépendante,
d’une grande aire ouverte au rez de chaussée, plafond de 9′ au rez de chaussée, d’un garage pour une voiture et bien d’autres commodités.
Photos
À venir…
Carte
Caractéristiques inclusions
Dimension du bâtiment : 24 x 32p
-
- Revêtement extérieur en pierre, bois, acrylique et fibrociment
- Toit plat
- Fenêtres type hybride ( PVC blanc intérieur/ALU noir extérieur)
- Aménagement extérieur (nivelé et gazonné)
- Stationnement extérieur pour 2 petites voitures (asphalté)
- Garage intégré pour une voiture
- Trottoir en interbloc entre le stationnement et la porte principale
- Patio arrière en bois traité et rampe aluminium noir
- Balcon avant en fibre de verre avec rampe en verre et alu noir
- Hauteur plafond rez-de-chaussée 9 pieds et hauteur plafond sous-sol 8 pieds
- Grande aire ouverte au rez-de-chaussée
- Salle de bain avec douche indépendante et bain podium
- Armoires cuisine et salle de bain de chez Cuisine Simard et Salle de bain
- Douche en verre et céramique
- Planchers bois franc au rez-de-chaussée et 2ème étage
- Céramique dans entrée, salle de bain, salle d’eau et cuisine
- Plomberie pour future salle de bain au sous-sol
- Echangeur d’air/récupérateur de chaleur à 80 %
- Plinthes à convection
- Escalier de bois franc en merisier à l’étage
- Choix de 4 couleurs pour la peinture des murs intérieurs
- 3 Sorties pour balayeuse centrale
- Possibilité de modifier les plans avec l’architecte ( 4 heures incluses)
- Qualité de construction supérieure
- Garantie GCR
Options :
-
-
- Sous-sol fini
- Plancher radiant au sous-sol
- Air climatisé
- Foyer au gaz
- Balayeuse centrale
- Système d’alarme
- Service de designer
-
* les photos sont à titre indicatif et peuvent différer du devis
Implantation
À venir…


