Splendides jumelés à vendre avec garages intégrés
Sise dans le plus beau secteur de Saint-Sacrement rue Barrin, près de tous les services, à deux pas du parc Notre-Dame-de-Bellevue, à courte distance de marche du Cégep Garneau, ainsi que de la rue Holland. L’achat de ce jumelé cottage est un bon investissement à long-terme.
Photos
À venir…
Carte
Caractéristiques et inclusions
Prix de 499 000.00 $ taxes en sus
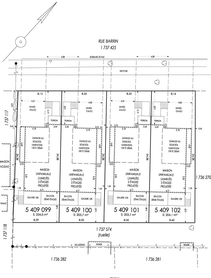
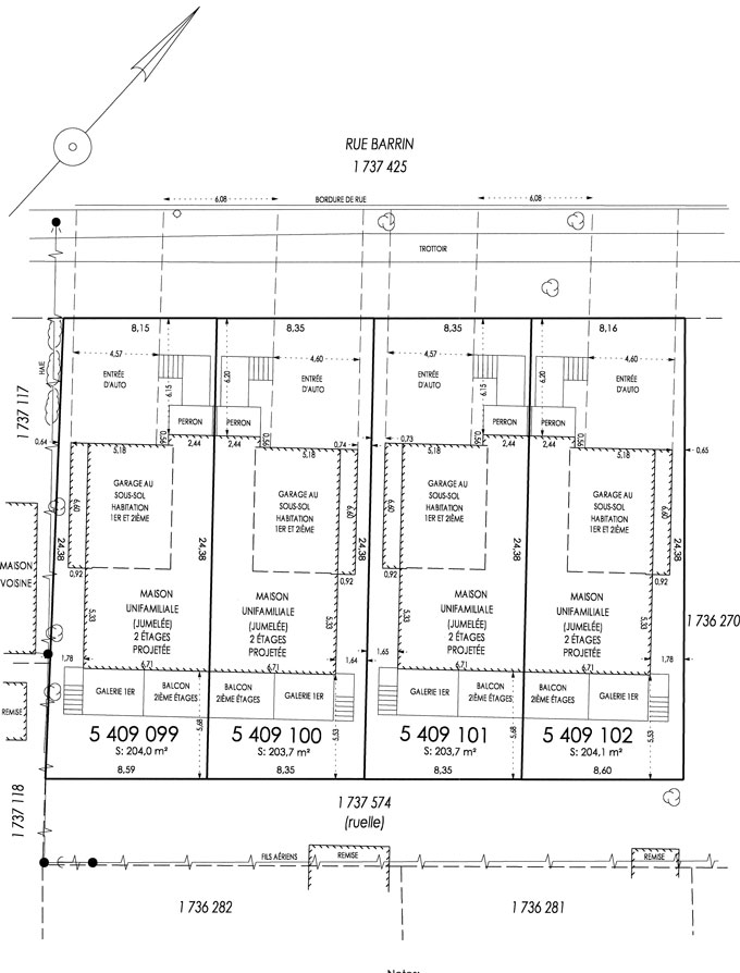
Dimension du bâtiment : 22 x 40 P
Superficie terrain : 2266 PC
Orientation de la cour : sud
- Revêtements extérieurs briques, bois et acier émaillé
- Toit plat
- Fenêtres type hybride ( PVC intérieur/ALU extérieur)
- Patio de 10 x20 en bois traité et rampe en alu noir
- Aménagement extérieur ( nivellé et gazonné)
- Mur de séparation mitoyen
- Terrain gazonné
- Stationnement extérieur pour 1 voiture
- Trottoir en inter-bloc entre le stationnement et la porte principale
- Porte de garage motorisée
- Garage intégré 1 voiture
- Grande aire ouverte au rez-de-chaussée
- Hauteur plafond rez-de-chaussée 9 pieds
- 2-3 chambres avec possibilité d’une 4ème au sous-sol
- Chambre des maîtres avec walk in
- Salle de bain complète avec douche indépendante et bain podium
- Douche en verre et céramique
- Armoires de chez Simard Cuisine et Salle de bain
- Planchers bois franc au rez-de-chaussée et 1er étage
- Céramique dans salle de bain, salle d’eau, entrée et cuisine
- Échangeur d’air / récupérateur de chaleur à 80 %
- Plinthes électriques
- Escalier de bois franc en merisier
- Choix de 4 couleurs pour la peinture des murs intérieurs
- 1 Sortie à chaque étage pour future balayeuse centrale
- Service de Designer possible
- Qualité de construction supérieure
- Garantie Abritat de 5 ans
Options :
- Sous-sol fini
- Air climatisé
- Foyer au gaz
- Système d’alarme
- Balayeuse centrale
* Les photos sont à titre indicatif et peuvent différer du devis.
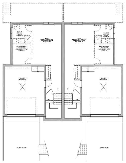
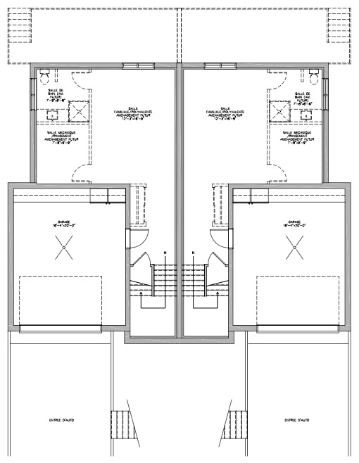
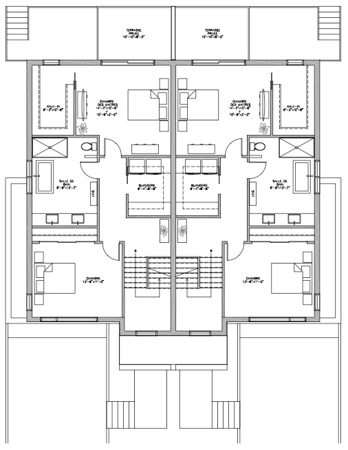
| Piéces | Niveau | Dimensions | Planchers | Détails |
| – | – | – | – | – |
| Salle de bain | Sous-sol | 7 x 7 | Céramique | Option |
| Rangement | Sous-sol | 7 x 10 | Béton | Option |
| Salle familiale | Sous-sol | 12 x 17 | Béton | Option |
| Garage | Sous-sol | 16 x 20 | Béton | 1 voiture |
| Cuisine | Rez-de-chaussée | 10 x 15 | Céramique | |
| Salle à diner | Rez-de-chaussée | 10 x 18 | Bois franc | |
| Salon | Rez-de-chaussée | 13 x 17 | Bois franc | |
| Patio | Rez-de-chaussée | 8 x 25 | Bois | |
| Chambre des maîtres | 1er étage | 14 x 11 | Bois franc | avec Walk in 6 x 9 |
| Salle de bain | 1er étage | 7 x 12 | Céramique | |
| Chambre | 1er étage | 9 x 10 | Bois franc | |
| Chambre | 1er étage | 11 x 10 | Bois franc |
Implantation
Plans





